Teste Modelo


Enunciado PDF Resolução Download




Neste teste pretende-se que cada aluno concretize na aula as tarefas solicitadas nas alíneas seguintes, em Autocad:

  • I - Crie um ficheiro template (dwt) com unidades, limites 100x70 m, desenhando os limites com linhas ou um rectangle, crie os layers necessários para o desenho de Pentágono, point style (Pstyle x, + ou outro que não .), Lweight (espessura por defeito de 0.15) Grave como dwt com o nome teste1. Fica guardado no seu Autocad. Grave também como desenho “teste template.dwg”. numa pasta “Alinea_1”.
  • II - Sobre o template criado desenhe um pentágono rigoroso com construção geométrica como se fosse a lápis (8º / 9º ano):
    • 1 - Faça o desenho da construção do pentágono e coloque-o a figura do pentágono obtida com espessura maior, para se destacar. O pentágono deve estar inscrito numa circunferência de raio 30 m e centrado nos limites definidos (100x70 m). Salve o desenho como "Pentágono geométrico.dwg” na pasta “Alínea_2”
    • 2 - A partir do desenho anterior, una os segmentos numa linha unida Polyline. A seguir copie para o lado direito apenas o a figura do pentágono, para 100 cm ao lado. Desenhe nesta cópia uma trama diagonal a 30º dentro do pentágono, com linhas paralelas a 2 m de distância, num layer chamado "Trama". Salve o desenho como "Pentágono Trama.dwg" na pasta “Alínea_2”
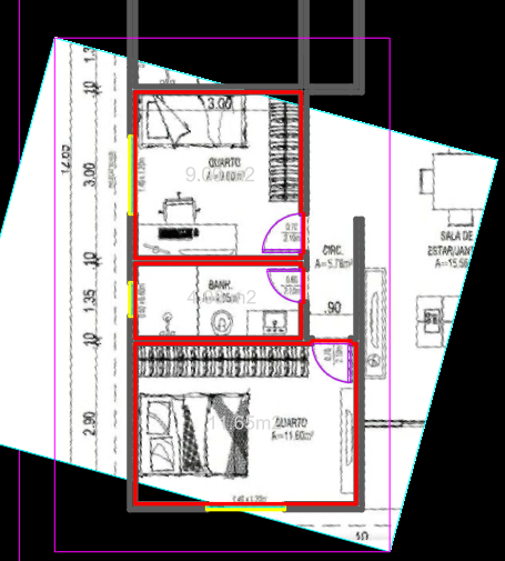
  • III – Faça o desenho de uma planta com pelo menos 3 compartimentos à escolha a partir de uma das imagens dadas (A ou B) das imagem de uma planta dadas. Inicie o desenho com o template dado, que já tem os layers necessários. Pretende-se o desenho de 3 compartimentos à sua escolha seja feito sobre a imagem da planta dada inserida no autocad, com escala e rotação corretas. Represente na planta: - Paredes em corte e em vista - Abertura de vãos e portas nas paredes - Desenhar os vãos com secção caixilho 10cmx10cm e vidro (apenas uma linha) - Desenhe os Polylines que vão dar as áreas de cada compartimento no layers já criado para o efeito. - Escreva em cada compartimento a sua área em m2. Coloque o desenho “Planta sobre imagem.dwg” na pasta “Alínea3”.

Enunciado PDF



<<Voltar ao indice












Resolução Download



<<Voltar ao indice