Faculdade de Arquitetura da Universidade de Lisboa

Mestrado Integrado em Arquitetura 2°C


Representação Digital

Professor Luís Romão
2025/2026

Adriana Ataíde

Semana 07


-PLANTA BAIRRO ALTO

Redimensionamento da planta em estudo, atrav;ãos do comando SCALE (ferramenta usada para alterar a escala de um ou mais objetos no desenho).



Alteração da folha de layout para o tamanho A0,atrav;ãos do comando PAGESETUP, de modo a incorporar corretamente a planta estudada.

Dimensionamento da planta para duas escalas em estudo, neste caso escala 1:1000 e escala 1.100.



Descarregar ficheiro AUTOCAD- Bairro Alto



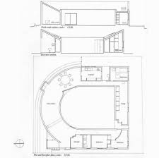
-PLANTA TOYO ITO HOUSE

Ínicio do estudo da planta e cortes da Toyo Ito House, em Tóquio.
Alteração do formato em estudo através das ferramentas do GIMP. Introdução da planta numa nova página do Autocad,através da ferramenta IMAGEATTACH (ferramenta usada para inserir imagens externas).





Dimensionamento de algumas formas da nova planta em estudo, através da ferramenta X-LINE e DIST (ferramenta usada para medir a distãncia entre dois pontos no desenho).





AULA 14


Continuação do estudo da planta a Toyo Ito House, escalando a sua forma, através do comando SCALE,de modo a que as medidas correspodam à medida real.


Alteração da folha de layout para o tamanho A4,atravãos do comando PAGESETUP, de modo a incorporar corretamente a planta estudada.
ESTUDO PLANO TRIDIMENSIONAL

Inicio do estudo da planta, no plano tridimensional. Introdução de diversas linhas, através do comando X-LINE.
Assim, alguns elementos essenciais da planta ficaram delimitados por essas linhas.
Depois, vamos usar o comando PLINE para fazer o contorno da secção mais á esquerda na camada das paredes: Com o limite feito, vamos desligar todas as layers menos "paredes" vamos passar para a vista "SE ISOMETRIC "
Em seguida, vamos usar o command MOVE e selecionar o contorno que acabámos de fazer, pelo ponto mais no extremo e juntar á linha de contorno grande no seu extremo. Depois usar o command ROTATE e meter -90 Depois mudar o UCS com a origem no extremo esquerdo da fig. curva, clicar em x e escrever 90 Depois, comando rotate outra vez e selecionar o contorno, e dar 90 outra vez. Depois, comando EXTRUDE, selecionar o contorno e PATH e selecionar o contorno curvo e enter

Passo a passo:



Moldagem do corte transversal, de modo a criar a volumetria correspondente da planta em estudo.



Conclusão da volumetria a criar, através do comando EXTRUDE.



Criação de uma nova planta, através da volumetria desenhada e do comando SECTION.



Criação de novos cortes, longitudinal e transversal,novamente através do comando SECTION.



Descarregar ficheiro AUTOCAD- Toyo House



Voltar