Faculdade de Arquitetura da Universidade de Lisboa

Mestrado Integrado em Arquitetura 2B


Representação Digital

Professor Luís Romão
2025/2026

Carmelita Solodnicov

Semana 04


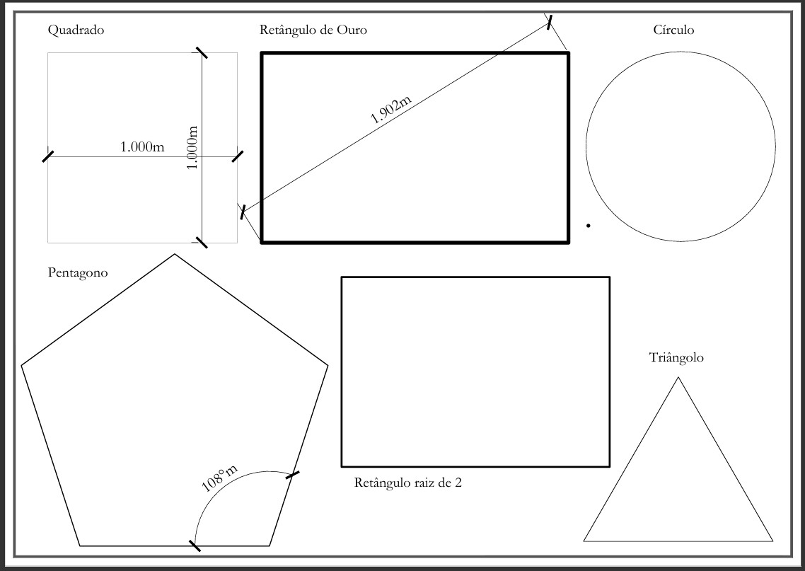
Continuação e conclusão do exercício no AutoCad: Criação de 6 polígonos dentro de diferentes janelas com respetiva legenda e medida.




Utilizar o comando "dtext" para criar legendas com respetivo nome de cada figura (altura texto: 5mm) (estilo de texto: comando "style", estilo rd, fonte de letra garamond)




Colocação das legendas e das cotas nas respetivas figuras.




Alteração da espessura das linhas, texto e cotas. Observação da preview em pdf.




Por fim apagamos todo o conteudo.












Voltar