Faculdade de Arquitetura da Universidade de Lisboa

Mestrado Integrado em Arquitetura 2A


Representação Digital

Professor Luís Romão
2025/2026

Beatriz Garrido

Semana 06 - 16/17 outubro


Continuação do exercício de cónica.
Na aula passada fizemos um corte, esta semana fizemos uma parábola, uma elipse e uma hipérbole.
Colocamos todos estes elementos numa folha de papel possível de imprimir.

PDF para impressão






Neste próximo exercício fizemos uma parábola à mão de duas formas, uma um pouco mais rigorosa.
Com a parábola azul criámos uma superfície parabólica.





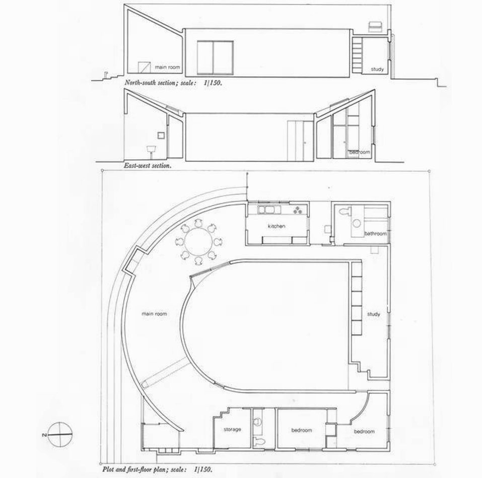
Começamos ainda um outro exercício onde pegamos num projeto existente (uhouse - Toyo Ito).
Colocamos na escala 1:1 e colocamos numa folha na escala 1:100.



Voltar