Faculdade de Arquitetura da Universidade de Lisboa

Mestrado Integrado em Arquitetura 2B


Representação Digital

Professor Luís Romão
2025/2026


Carolina Roque

Semana 07


Conclusão do exercício da aula anterior, intitulado Parábola . Com os comandos "LINE", "CIRCLE", "TRIM", "XLINE", "SPLINE", "COPY", "SURFTAB 1", "SURFTAB 2" e "REVSURF" realizámos o trabalho.







Análise e treino de uma planta 1:1000 , planta esta de intervenção, no Bairro Alto, para a cadeira de projeto para saber como importar imagens para o AutoCad, como mudar a sua escala e como colocar numa folha de trabalho, neste caso A0.





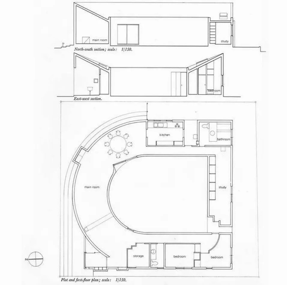
Início de um novo exercício para treinar os comandos e as formas no AutoCad. Exercício designado White U House . Edifício planeado por Toyo Ito contruída no ano 1976.





Neste exercício utilizámos diversos comandos como por exemplo: "UNITS", "XLINE", "SCALE", "MOVE", "ROTATE", "EXTRUDE", "PLINE", "UNION" e "SECTION".





Resumo de todos os comandos utilizados na execução do exercício anterior:











Voltar