Faculdade de Arquitetura da Universidade de Lisboa

Mestrado Integrado em Arquitetura


Representação Digital

Professor Luís Romão
2025/2026
2C

Mariana Carvalho

Semana 04

Aula 7 - Dia 30/09


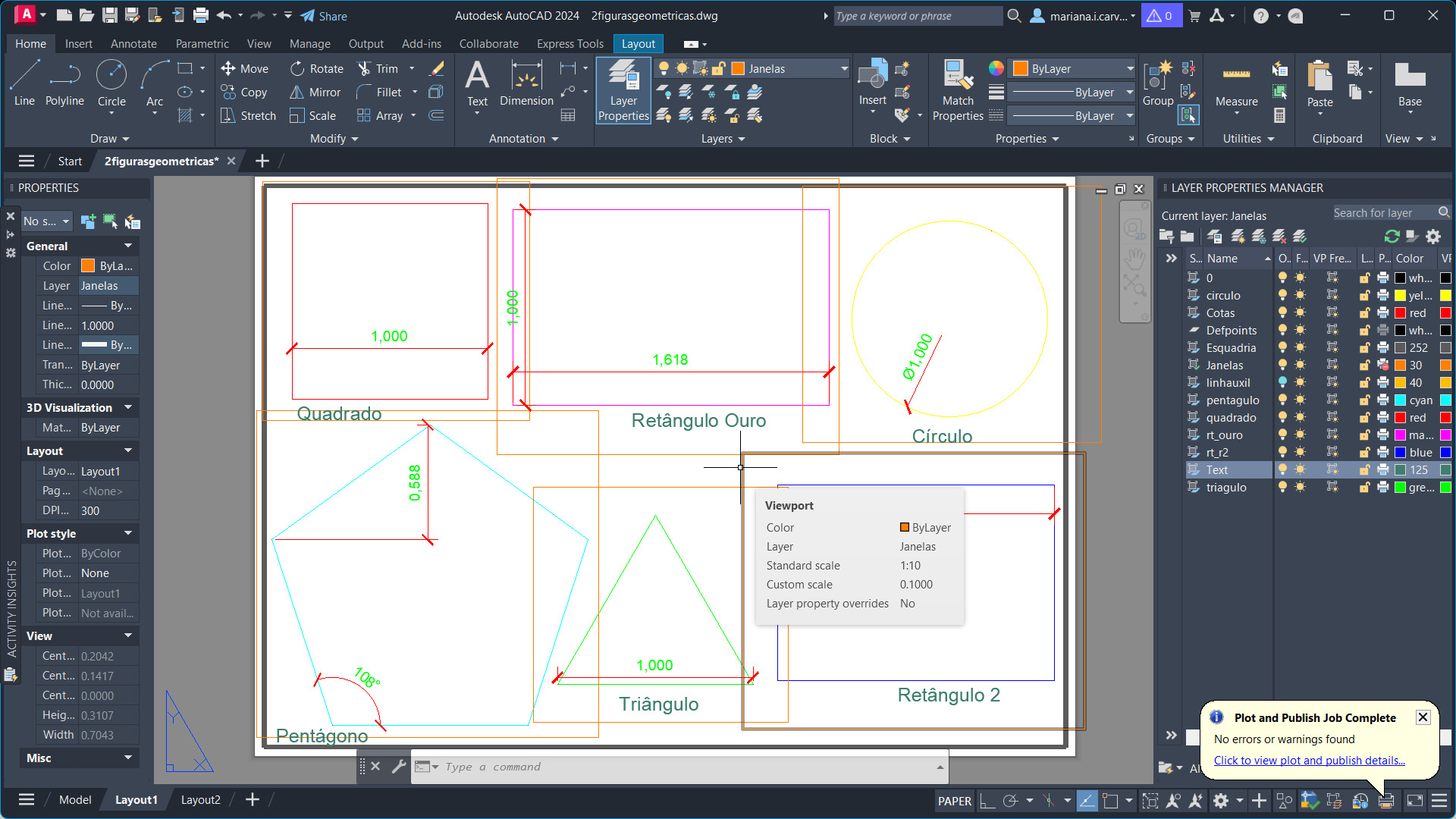
Através do exercício das figuras geométricas, foi concretizado um layout onde se encontram 6 janelas e que cada uma contem uma das 6 figuras. Assim sendo foram utilizados comandos como:

-Mview para criar as janelas;
-Erase (e por sua vez all) para limpar a área de trabalho;
-MSpace e Pspace para ligar e desligar respetivamente a zona de trabalho dentro das janelas;
-VPFreeze para operar as invisibilidades dentro das layers;
-Zoom;
-PageSetup e Preview para manusear as definições e executar uma previsualização;
-Copy para copiar as janelas e Move para mover as mesmas;
-Style para edição;
-DText para inserir as legendas.



Aula 8 - Dia 02/10


Continuação do exercício das figuras geométricas, transformando o layout antes concretizado.
Legendar de todos os elementos de forma correta, trabalho com os vários tipos de pontos através do comando OSnap e colocação das medidas respetivas através dos comandos Dim, DimStyle, DimLinear e Trim para trabalhar com os mesmos (cortando linhas desnecessárias).



Utilização do comando Plot para dimensionar a espessura e cor das canetas, e por sua vez para gerar o template pdf de impressão.
Apresentação ainda de comandos como Setvar e Purge.




Voltar